Menu
Utama
Servis
Construction
Renovation
Electrical
Rumah
Pelan Reka Bentuk
Portfolio Rumah Siap
Video
Tentang Kami
Info Syarikat
Pengurusan MAFY Builders
Kerjaya
Hubungi
Utama
Servis
Construction
Renovation
Electrical
Rumah
Pelan Reka Bentuk
Portfolio Rumah Siap
Video
Tentang Kami
Info Syarikat
Pengurusan MAFY Builders
Kerjaya
Hubungi
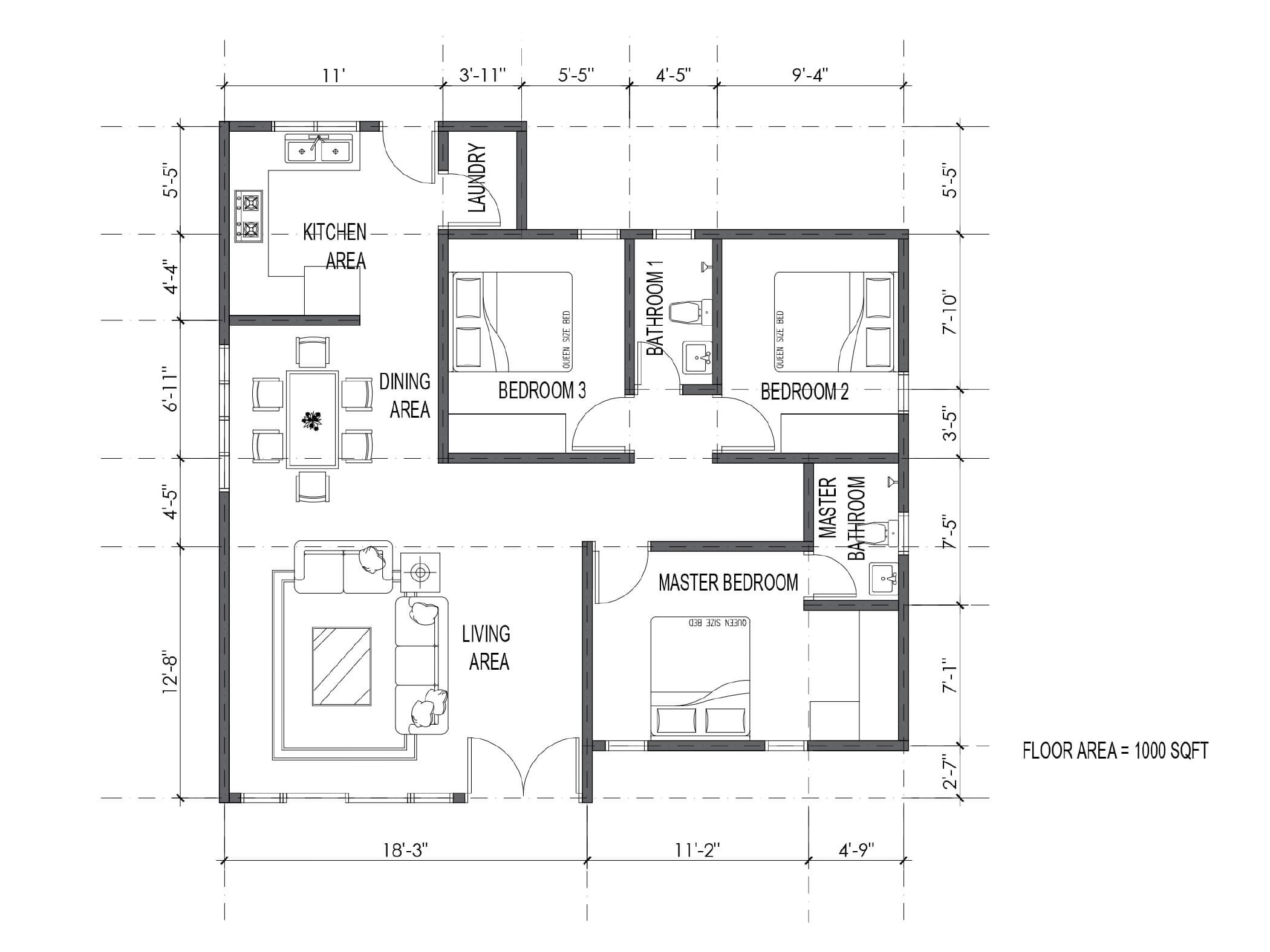
Design D10
1000
Keluasan Persegi (KPS)
3
Bilik Tidur
2
Bilik Air
PELAN LANTAI
PELAN PELBAGAI SISI
Klik Download PDF Design D10
Download
lihat reka bentuk rumah lain lagi
TEKAN SINI
Dapatkan sebut harga sekarang
Please enable JavaScript in your browser to complete this form.
Please enable JavaScript in your browser to complete this form.
Nama
*
No telefon
*
Lokasi
*
Hantar
atau terus contact kami sekarang
admin
whatsapp
hubungi
aziq
whatsapp
hubungi
Kami membina dan pereka bentuk rumah moden dan estetik
Pautan Pantas
Hubungi
No 51, Batu 18, Jalan Seremban, 71500 Tanjung Ipoh, Kuala Pilah, Malaysia
011-1097 3621
mafybuilders@gmail.com
© All Copyright 2023 by kontraktorbinarumah.com
→
Contact Us
Contact Us
- Senarai Service-
Pembinaan Rumah
Renovasi Rumah
Penghawa Dingin
CCTV
Door Access
WhatsApp
Phone